Open House

Listing Tools

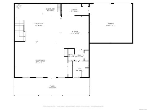
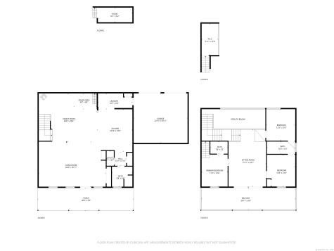
Welcome to this stunning, rarely available contemporary new construction at the end of a quiet cul-de-sac with partial views of Moodus Reservoir. This year-round retreat blends modern luxury with natural beauty in a peaceful lakefront setting. Enter through 8', 1,000-lb wrought-iron doors into an open layout with 10' ceilings and a dramatic 24' vaulted center. The restaurant-grade kitchen features premium appliances for the serious cook. A suspended staircase leads to spacious bedrooms with 12' ceilings, including a primary suite with a 7'x14' walk-in closet. The first-floor bath offers spa-style luxury with massage jets, steam sauna, and rainfall shower. Enjoy a private 16' home theater, on-demand hot water, propane heat, and a commercial-grade reverse osmosis system filtering 1,000 gallons daily. The garage includes an EV charger. Outdoor spaces feature two large patios-a 10'x40' main terrace and an upper deck-ideal for relaxing or entertaining with water views. Walking distance to the waterfront, private beach, boat launch, and dog park, this home offers access to a fully recreational lake for boating, kayaking, and swimming. Minutes from Goodspeed Opera House, Gillette Castle, Devil's Hopyard, golf, and fine dining, this East Haddam gem defines lakeside luxury. Built with I-beams and trusses rated for 50,000 lbs and a 50-year commercial rubber membrane roof, it's designed for strength and high energy efficiency.

Property Details of 8 Tom Road, Moodus Lake Shores

Map Location

Driving Directions

Listed by Alexis Devlin of Coldwell Banker Realty ((860) 214-9859)

The data relating to real estate for sale on this website appears in part through the SmartMLS Internet Data Exchange program, a voluntary cooperative exchange of property listing data between licensed real estate brokerage firms, and is provided by SmartMLS through a licensing agreement. Listing information is from various brokers who participate in the SmartMLS IDX program and not all listings may be visible on the site. The property information being provided on or through the website is for the personal, non-commercial use of consumers and such information may not be used for any purpose other than to identify prospective properties consumers may be interested in purchasing. Some properties which appear for sale on the website may no longer be available because they are for instance, under contract, sold or are no longer being offered for sale. Property information displayed is deemed reliable but is not guaranteed. Copyright 2026 SmartMLS, Inc.

Hi there! How can we help you?

Contact us using the form below or give us a call.

Send Us A Message:

I agree to receive marketing and customer service calls and text messages from Ferrigno-Storrs, REALTORS LLC.. To opt out, you can reply 'stop' at any time or click the unsubscribe link in the emails. Consent is not a condition of purchase. Msg/data rates may apply. Msg frequency varies. Privacy Policy.

Do not fill in this field:

This site is protected by reCAPTCHA and the Google Privacy Policy and Terms of Service apply.

Hi there! How can we help you?

Contact us using the form below or give us a call.

Send Us A Message:

Do not fill in this field:

This site is protected by reCAPTCHA and the Google Privacy Policy and Terms of Service apply.

Hi there! How can we help you?

Contact us using the form below or give us a call.

Send Us A Message:

Do not fill in this field:

This site is protected by reCAPTCHA and the Google Privacy Policy and Terms of Service apply.

Do not fill in this field:

This site is protected by reCAPTCHA and the Google Privacy Policy and Terms of Service apply.

Do not fill in this field:

This site is protected by reCAPTCHA and the Google Privacy Policy and Terms of Service apply.

Do not fill in this field:

This site is protected by reCAPTCHA and the Google Privacy Policy and Terms of Service apply.

$

Do not fill in this field:

This site is protected by reCAPTCHA and the Google Privacy Policy and Terms of Service apply.