Active

Listing Tools

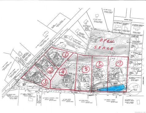
This is Lot 1. This is an approved lot, ready to go. A DAYLIGHT BASEMENT IS POSSIBLE. This lot features a wooded buffer at the road opening to a rolling meadow, so no clearing and a lot of design flexibility. There is plenty of room for a swimming pool. This is a really beautiful lot. We will be happy to meet with you to walk this lot and to discusss the building process. We have suggested several home designs, however, we will work with you to build the custom home that you want. This upscale colonial plan features a two-story Great Room with a stone fireplace and a great open floor plan with a first floor Master BR Suite. Our mission is to have you "Live Happily Ever After". These homes will be built by Kirk and Reed MacNaughton of Blue Sky Builders. They have been building custom homes in Northern Connecticut for over 30 years and specialize in upscale energy efficient new homes. Their Blue Sky Energy Saver Branded New Homes represent the "State of the Art" in intelligent, energy efficient new construction. These homes are built tight to minimize outside air flow and are meticulously insulated. These homes feature high performance air sealing and insulation, Energy Star windows, mechanical systems and appliances. Geothermal heating and cooling is an available option. Builder and Broker are affiliated.

Property Details of 279 North Granby Road, North Granby

Map Location

Driving Directions

Listed by J.K. Macnaughton of MacNaughton Real Estate ((860) 305-4445)

The data relating to real estate for sale on this website appears in part through the SmartMLS Internet Data Exchange program, a voluntary cooperative exchange of property listing data between licensed real estate brokerage firms, and is provided by SmartMLS through a licensing agreement. Listing information is from various brokers who participate in the SmartMLS IDX program and not all listings may be visible on the site. The property information being provided on or through the website is for the personal, non-commercial use of consumers and such information may not be used for any purpose other than to identify prospective properties consumers may be interested in purchasing. Some properties which appear for sale on the website may no longer be available because they are for instance, under contract, sold or are no longer being offered for sale. Property information displayed is deemed reliable but is not guaranteed. Copyright 2026 SmartMLS, Inc.

Hi there! How can we help you?

Contact us using the form below or give us a call.

Send Us A Message:

I agree to receive marketing and customer service calls and text messages from Ferrigno-Storrs, REALTORS LLC.. To opt out, you can reply 'stop' at any time or click the unsubscribe link in the emails. Consent is not a condition of purchase. Msg/data rates may apply. Msg frequency varies. Privacy Policy.

Do not fill in this field:

This site is protected by reCAPTCHA and the Google Privacy Policy and Terms of Service apply.

Hi there! How can we help you?

Contact us using the form below or give us a call.

Send Us A Message:

Do not fill in this field:

This site is protected by reCAPTCHA and the Google Privacy Policy and Terms of Service apply.

Hi there! How can we help you?

Contact us using the form below or give us a call.

Send Us A Message:

Do not fill in this field:

This site is protected by reCAPTCHA and the Google Privacy Policy and Terms of Service apply.

Do not fill in this field:

This site is protected by reCAPTCHA and the Google Privacy Policy and Terms of Service apply.

Do not fill in this field:

This site is protected by reCAPTCHA and the Google Privacy Policy and Terms of Service apply.

Do not fill in this field:

This site is protected by reCAPTCHA and the Google Privacy Policy and Terms of Service apply.

$

Do not fill in this field:

This site is protected by reCAPTCHA and the Google Privacy Policy and Terms of Service apply.