Pending Continue to Show

Listing Tools

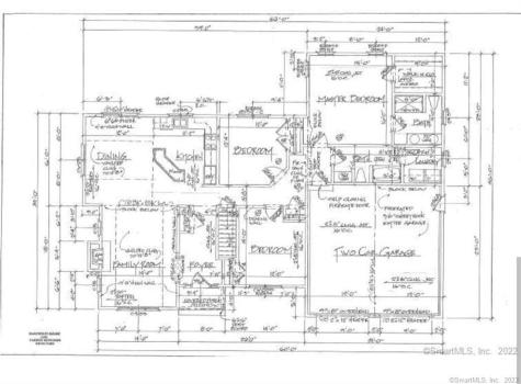
To Be Built - Situated on just under 8 acres, this stunning one floor ranch welcomes you with gorgeous views and plenty of yard space. Entering from the covered porch, this home offers 3 bedrooms, 2 full baths and a 2-car garage. Features include; red oak hardwood floors, 9ft ceilings throughout, and vaulted ceilings in the living room. The kitchen features hardwood soft-close cabinets, tile backsplash, and a large island fit for entertaining. The expansive primary suite also offers a walk-in closet and private bath. Premium features include; granite or quartz countertops throughout, 12x12 composite deck with vinyl railings, fireplace, high efficiency furnace, on-demand water heater, 500-gallon propane tank below ground, and well/septic. This ranch also has a full basement of 1748 sq ft. The builder offers a very impressive selection package, with multiple finish options available, including tile, color selections, and flooring. This quiet neighborhood offers excellent school systems, close by to Enders State Forest, Barkhamsted Resevoir, just a few miles from Ski Sundown and has great access to highways/Boston. Listing photos are provided for illustration purposes only and taken from previously built house.

Property Details of 19 Ratlum Mountain Road

Map Location

Driving Directions

Listed by Jenna Talbot of Coldwell Banker Realty ((860) 937-7488)

The data relating to real estate for sale on this website appears in part through the SmartMLS Internet Data Exchange program, a voluntary cooperative exchange of property listing data between licensed real estate brokerage firms, and is provided by SmartMLS through a licensing agreement. Listing information is from various brokers who participate in the SmartMLS IDX program and not all listings may be visible on the site. The property information being provided on or through the website is for the personal, non-commercial use of consumers and such information may not be used for any purpose other than to identify prospective properties consumers may be interested in purchasing. Some properties which appear for sale on the website may no longer be available because they are for instance, under contract, sold or are no longer being offered for sale. Property information displayed is deemed reliable but is not guaranteed. Copyright 2025 SmartMLS, Inc.

Hi there! How can we help you?

Contact us using the form below or give us a call.

Send Us A Message:

I agree to receive marketing and customer service calls and text messages from Ferrigno-Storrs, REALTORS LLC.. To opt out, you can reply 'stop' at any time or click the unsubscribe link in the emails. Consent is not a condition of purchase. Msg/data rates may apply. Msg frequency varies. Privacy Policy.

Do not fill in this field:

This site is protected by reCAPTCHA and the Google Privacy Policy and Terms of Service apply.

Hi there! How can we help you?

Contact us using the form below or give us a call.

Send Us A Message:

Do not fill in this field:

This site is protected by reCAPTCHA and the Google Privacy Policy and Terms of Service apply.

Hi there! How can we help you?

Contact us using the form below or give us a call.

Send Us A Message:

Do not fill in this field:

This site is protected by reCAPTCHA and the Google Privacy Policy and Terms of Service apply.

Do not fill in this field:

This site is protected by reCAPTCHA and the Google Privacy Policy and Terms of Service apply.

Do not fill in this field:

This site is protected by reCAPTCHA and the Google Privacy Policy and Terms of Service apply.

Do not fill in this field:

This site is protected by reCAPTCHA and the Google Privacy Policy and Terms of Service apply.

$

Do not fill in this field:

This site is protected by reCAPTCHA and the Google Privacy Policy and Terms of Service apply.